
大森幕屋住宅
HUNE Architects
项目名称:大森幕屋住宅
地点:东京,日本
设计团队:HUNE Architects
建筑面积:77.85 m²
竣工时间:2025年
摄影:Yurika Takano
设计特色:
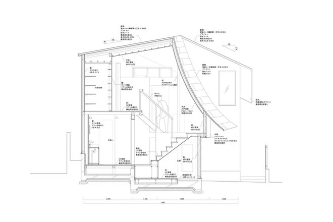
项目-大森幕屋住宅由HUNE建筑事务所设计,坐落于东京品川区邻近JR铁路线的紧凑场地,展现了古代幕屋建筑智慧与当代家庭生活需求的完美融合。这座77.85平方米的两层木结构住宅以其独特的织物般屋顶形态,重新定义了紧凑都市空间内多代同堂家庭的居住体验。
该项目最引人注目的成就在于其智慧的离散空间堆叠策略。建筑为四口之家设计,每位成员拥有不同爱好并需要个人空间而不过度干扰彼此。HUNE的设计回应是将卧室以L型配置,半层错开以适应前方道路的上升坡度。在睡眠区之上,沿楼梯离散堆叠了低矮休憩区、家庭用餐空间和兴趣工作室,营造出超越场地有限尺寸的空间开阔感。
建筑叙事通过精妙的屋顶构造展开,展现出卓越的结构创新。决定性的建筑元素是那延展的白色屋顶,构思为轻柔地铺在整个组合之上的布料。中央立柱将屋顶向上推起形成屋脊,从中四片屋顶平面(包括曲面)向周边下降。这种配置创造了屋顶与地板层之间持续变化的关系,屋顶与地面的距离感随人的动线不断改变。从玄关沿楼梯上行时,空间逐渐在眼前展开,使居住者感知到通过屋顶距离和人的移动所带来的内外距离感变化。
材料选择体现了创新工程技术的实用性。弯曲屋顶采用创新的薄板层压结构,将15毫米杉木板弯曲成总厚度45毫米的三层组合,饰以白色涂料以在室内漫射光线。通过工厂和现场的MEMS加速度传感器测量面外振动,确认45毫米厚曲面集成板的固有振动频率比15毫米厚单板高约2.5倍,证实其具备相当于40毫米厚单板的面外弯曲刚度。建筑采用木结构框架体系,配备筏板基础,在6.744米的最大高度内实现了建筑面积40.62平方米、容积率93%的高效空间利用。
立面处理展现了策略性开窗设计的精致性。在屋顶各部分之间的缝隙中开凿的窗户引入自然光,从侧面照亮弯曲屋顶表面,将每个时刻变化的光色漫射到整个空间。这种精心编排的开口系统将周边都市环境转化为日常生活不断变化的背景幕布,同时柔软的屋顶在室内外之间保持适当距离,温柔地保护家庭免受铁路噪音和外界喧嚣的侵扰。
项目的另一大特色是其对幕屋原型的当代诠释和高性能建筑实践。幕屋是古代将布张开、撑起而形成空间的简易帐篷式小屋,既作为住居建造,也作为神的居所和人神相遇之地,甚至被视为人体本身的象征。设计通过将力量松弛的布料自然下垂形成场所的意象,以人类活动与自然力学的平衡创造临时幕屋空间,并将其转化为永久的居住建筑。设计团队设想家庭成员各自在布料下形成的空间中找到属于自己的居处,以各自喜欢的方式度过时光。大森幕屋住宅证明了设计能够在不牺牲空间品质、结构创新或居住舒适的前提下,实现传统建筑智慧的当代转译。
设计团队- HUNE建筑事务所成立于2019年,由主持建筑师玉木浩太、李家懿和林盛领导,现已发展成为日本领先的建筑实践机构,以其在当代住宅和创新空间策略领域的前瞻性方法而闻名。事务所总部位于东京,业务延伸至日本各地项目,展现了卓越的设计实力。
在玉木浩太、李家懿和林盛的创意指导下,事务所领导着充满活力的跨学科团队,包括建筑师、设计师和研究人员。玉木浩太毕业于东京大学,曾在伊东豊雄建筑设计事务所工作并在野村不动产从事商业开发,于2006年获得东京大学辰野賞(最优秀毕业设计奖)。李家懿生于英国,毕业于巴斯大学和伦敦建筑联盟学院,拥有英国建筑师注册委员会和英国皇家建筑师协会注册建筑师资格,现任芝浦工业大学客座讲师。林盛拥有东京大学工学博士学位,现任东京都立大学准教授,其作品曾获得2019年北美照明学会奖和日本标识设计奖银奖。他们的协作方式体现了对建筑本质的深刻思考和对人性化环境的持续追求。
事务所的设计哲学聚焦于创造人类能够真正表现人性的环境。HUNE认为社会已演变为一个无缝连接的连续体,物理限制已经消解,人类正在获得新的身体感知。然而在这场技术革命中,事务所努力将人们带回其本质属性,持续探问何为真正的人类巢穴。他们的设计方法论强调超越传统建筑概念,以更自由的思维持续追问人类巢穴的本质,始终如一地交付平衡创新性与实用性、空间品质与居住舒适的项目。
HUNE建筑事务所作为全方位服务的建筑实践机构,在多元建筑类型中展现专业能力,涵盖住宅建筑、商业设施、文化建筑、结构创新研究和空间实验项目。事务所通过涵盖从实验性住宅到创新公共建筑的多样化作品集,在日本当代建筑领域建立了新的典范,展现出对创造真正人性化环境的持续承诺。其2024年优良设计奖获奖项目HAUN TABATA证明了事务所在当代日本建筑实践中的卓越地位。事务所相信建筑作为人类巢穴的本质价值,并在所有工作中注入对使人类生活真正回归本质的要素的奉献精神。
77.85 m²
东京,日本
2025




















