
AEAJ 绿色露台
隈研吾建筑都市设计事务所
设计特色:
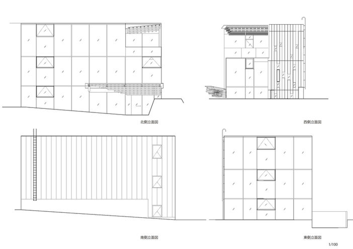
项目 – 这座位于东京涩谷核心地带的AEAJ绿色露台,由隈研吾建筑都市设计事务所设计,将大自然与建筑完美融合。这个令人着迷的文化设施为日本芳香环境协会而建,其惹人注目的造型宛如一棵优雅的树木。这个项目真正的精髓在于它精心组装的方式,小小的105毫米x105毫米日本杉木板块巧妙地交错编织而成别致通透的立面。玻璃外壳内,木质格栅散发温暖的木香气息,遍布整个空间,让人身临其境地沉浸在多感官体验中,感受木材的芳香。隈研吾在设计中巧妙地融合结构元素,精心调整钢材尺寸使之与纤细的木质构件相得益彰。如此和谐的材料组合令内部空间显得透亮通逸,仿佛建筑本身就是延伸自拥抱它的大自然。从巧夺天工的悬挑平台上,可一览明治神宫前的林木苍翠,细心构思的立面造型,与丹下健三标志性作品代代木国家体育馆隔铁路相望,形成独特的对比。AEAJ绿色露台堪称隈研吾构筑人与自然深厚联系空间的杰作。
团队 – 1990年,著名日本建筑师隈研吾(1954年生)创立了隈研吾建筑都市设计事务所(Kengo Kuma and Associates,简称KKAA)。经过多年发展,该事务所已成为全球领先且富有经验的情境驱动设计公司,在东京、巴黎、北京和上海均设有办事处,在40多个国家完成了众多创新项目,巧妙融合建筑与自然环境。隈研吾的设计理念强调与场地的深度联系,巧妙运用自然材料,通过细致入微的干预手法,打造出既尊重当地文化与生态,又能提升人文体验的建筑作品。从大型文化设施到尺度宜人的度假别墅,KKAA的作品涵盖多种尺度和类型,但无一例外地体现了可持续发展和对人与环境关系的深刻理解。在隈研吾的带领下,KKAA不断推进当代建筑的边界,融合创新技术和传统工艺,实现了远见卓识的设计,重塑了建筑环境的角色定位。迈入第四个十年,KKAA凭借卓越的设计品质和持续的创新精神,已经成为建筑及设计行业的全球重要力量。
Feature:
Project - Nestled in the heart of Shibuya, Tokyo, the AEAJ Green Terrace by Kengo Kuma & Associates offers a breathtaking fusion of nature and architecture. This captivating cultural facility, designed for the Aroma Environment Association of Japan, beckons visitors with its striking form that emulates the graceful silhouette of a tree.
The true genius of this project lies in its meticulous assembly, where small 105mm x 105mm Japanese cypress pieces interlock to create an intricate, permeable façade. Encased within a glass envelope, the wooden latticework exudes a warm, woody fragrance that permeates the entire space, immersing occupants in a multi-sensory experience that celebrates the aroma of wood. Kengo Kuma's design seamlessly blends the structural elements, with steel members carefully scaled to complement the delicate wooden components.
This harmonious marriage of materials lends the interior a sense of lightness and transparency, as if the structure itself is an extension of the natural world it seeks to embrace.From the cleverly cantilevered terrace that offers panoramic views of the verdant Jingumae woods, to the thoughtful contrast with Kenzo Tange's iconic Yoyogi National Gymnasium across the railway tracks, the AEAJ Green Terrace stands as a remarkable testament to Kengo Kuma's mastery of crafting spaces that foster a profound connection between people and nature.
Design Team - Founded in 1990 by renowned Japanese architect Kengo Kuma, Kengo Kuma and Associates (KKAA) has established itself as a global leader in thoughtful, context-driven design. With a team of highly skilled professionals across offices in Tokyo, Paris, Beijing, and Shanghai, the firm has completed innovative projects in over 40 countries, seamlessly blending architecture with the natural environment.
Kuma's design philosophy emphasizes a deep connection to place, using natural materials and sensitive interventions to craft buildings that elevate the human experience while respecting local cultures and ecologies. From large-scale cultural institutions to intimate residential retreats, KKAA's portfolio showcases a mastery of scale and typology, united by a commitment to sustainability and an innate understanding of how architecture can foster meaningful relationships between people and their surroundings.
With Kuma at the helm, KKAA continues to push the boundaries of contemporary architecture, integrating innovative technologies and traditional craftsmanship to realize visionary designs that redefine the role of the built environment. As the firm enters its fourth decade, its reputation for excellence and innovation continues to grow, solidifying its position as a global leader in the field.
491 m²
日本,涩谷市
2023年

















